Rustico in vendita

Cadelbosco Di Sopra, Via Giuseppe Mazzini - Argine
€ 190.000
6 locali 6 locali
415 Mq 415 Mq
1 bagno 1 bagno

Rustico in vendita

Cadelbosco Di Sopra, Via Giuseppe Mazzini - Argine

Descrizione annuncio

Villa Argine – Cadelbosco Sopra
Nel cuore della campagna reggiana, proponiamo in vendita casa indipendente con ampio cortile privato di circa 4.000 mq ed un rustico/deposito in corpo staccato, ideale per chi cerca spazi, privacy e autenticità.

L’abitazione si sviluppa su più livelli.
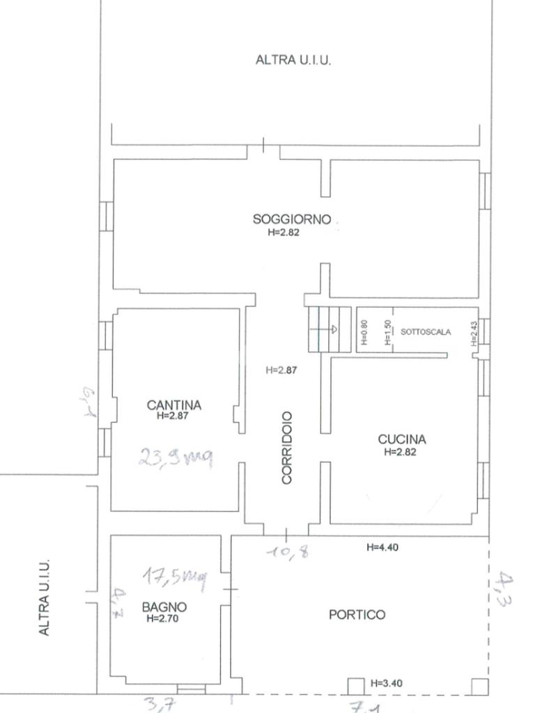
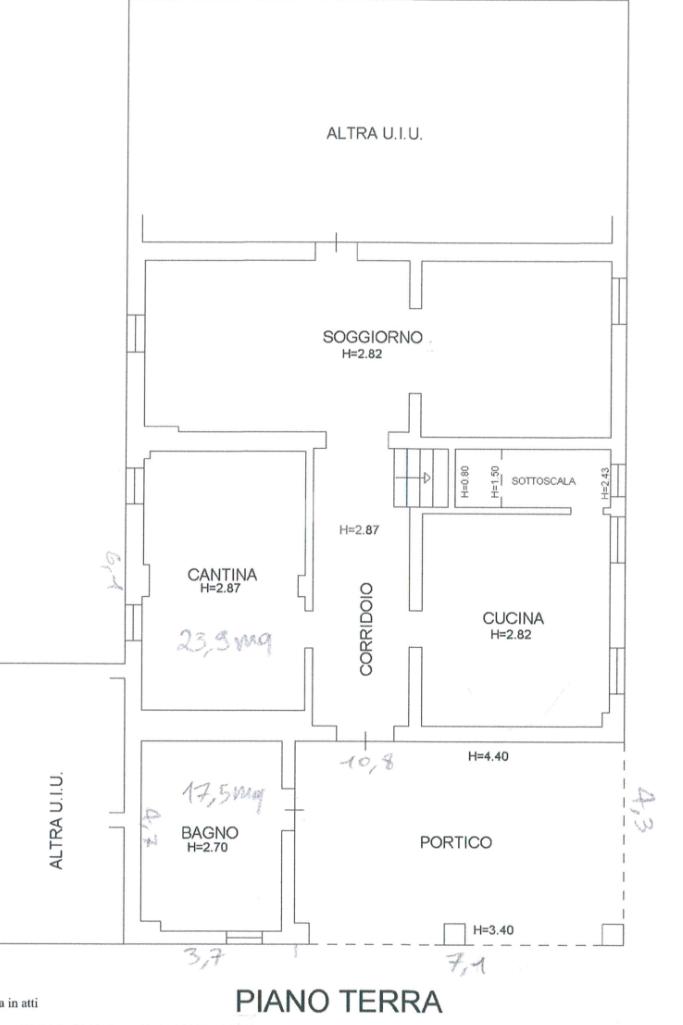
Piano terra: accogliente portico d’ingresso, ingresso, cucina abitabile, ampio soggiorno, bagno e cantina. Il piano è stato ristrutturato negli anni ’90, mantenendo il carattere della casa di campagna.
Primo piano: ampia zona notte composta da quattro camere matrimoniali, bagno e tre locali ripostiglio, perfetti come cabine armadio, studi o spazi di servizio.
Ultimo piano: soffitta.

l'immobile è dotato di inferiate, impianto di climatizzazione e allarme.


Una soluzione unica per chi desidera vivere la tranquillità della campagna senza rinunciare a metrature generose e versatilità degli per famiglie numerose, per chi ama gli spazi esterni o per chi cerca una casa con potenziale da personalizzare.

PER MAGGIORI INFORMAZIONI O FISSARE UN APPUNTAMENTO CHIAMACI AL 333/8467798 OPPURE MANDACI UNA MAIL ALL'INDIRIZZO: rehna@tecnocasa .it

Mostra tutto

Nelle vicinanze

Trasporto pubblico Trasporto pubblico
Trasporto pubblico
2,2 Km
Cadelbosco Sotto
Cadelbosco Sotto
2,2 Km
Farmacia Farmacia
Farmacia
2,3 Km
Bar Bar
Chiduché
2,2 Km
Bar
2,3 Km
Ristoranti Ristoranti
Gemmi
2,3 Km
Mostra tutto

Caratteristiche

Rif.:
61170562
Piano:
Su più livelli di 2
Totale piani:
2
Camere da letto:
4
Arredamento:
Assente
Condizionamento:
Autonomo
Mostra tutto
Prezzo Prezzo
€ 190.000
Rata mutuo Rata mutuo
€ 906 / mese
Spese annue Spese annue
€ 0
Proponi il tuo prezzoProponi il tuo prezzo

Classe Energetica

G
G
G
G
G
G
G
G
G
EP globale non rinnovabile:
450.00 kW h/m² anno
EP invernale del fabbricato:
EP estiva del fabbricato:
Anno di costruzione:
1960
Riscaldamento:
Autonomo
Tipo impianto:
A radiatori
Tipo alimentazione:
Metano

Ti interessa visionare l'immobile?

Fissa un appuntamento  Fissa un appuntamento

Richiedi informazioni

Clicca su Leggi per aprire l'informativa
* Questi campi sono obbligatori

Calcola il tuo mutuo

Semplice e senza impegno
Anticipo

( % )
Mutuo

( % )

pochi semplici passi

inserisci i tuoi dati
Questionario completato
Grazie per aver richiesto un appuntamento senza impegno con un nostro Consulente del Credito e Assicurativo.

Hai inserito correttamente tutti i dati necessari e a breve riceverai una e-mail con un link da convalidare per inviare i tuoi dati.
Affiliato
Studio Bagnolo In Piano Srl
P.zza XXV Aprile, 3/E 42023 Cadelbosco Di Sopra (RE)

Il nostro staff


  • Alessandro Pasquali
    Affiliato

  • Simone Pasquali
    Affiliato

  • Andrea Manfredi
    Collaboratore

  • Emiliano Pinchiorri
    Collaboratore

  • Filippo Pini
    Collaboratore

  • Anastasiya Slobodyan
    Coordinatrice
P.zza XXV Aprile, 3/E 42023 Cadelbosco Di Sopra (RE)
Zona: Cadelbosco di Sopra-Cadelbosco di Sotto-Villa Argine-Zurco-Villa Seta
Mostra su mappa
Orari: lunedì-venerdì 09.00-13.00 15.00-20.00; sabato 09.00-13.00 15.00-18.00 preferibilmente su appuntamento
Affiliato
Studio Bagnolo In Piano Srl
P.zza XXV Aprile, 3/E 42023 Cadelbosco Di Sopra (RE)

2026 Tecnocasa Franchising S.p.A. - P. IVA 08365160152 - Via Monte Bianco 60/A 20089 Rozzano (MI). Ogni agenzia ha un proprio titolare ed è autonoma. Privacy policy | Policy utilizzo | Cookie policy